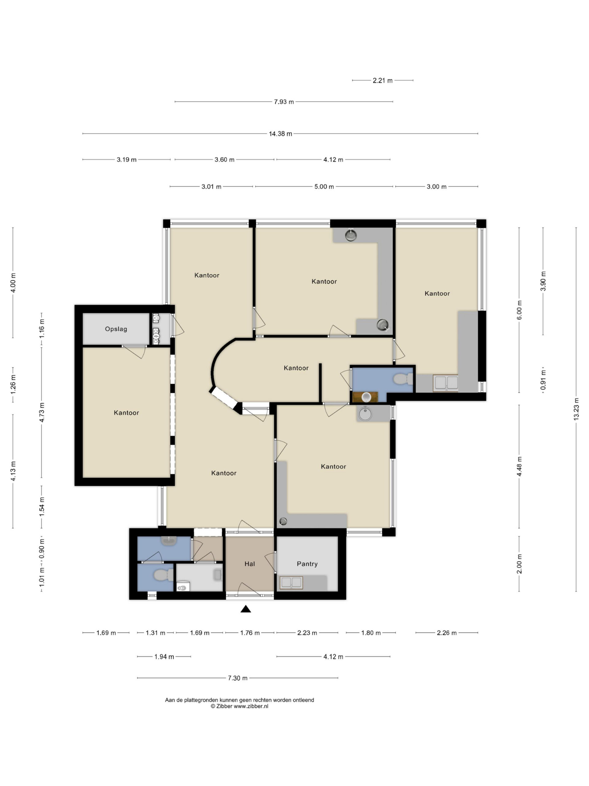
Ontdek dit veelzijdige bedrijfspand aan de Plejadenlaan 1 in Bergen op Zoom, gelegen op een goed bereikbare locatie met een maatschappelijke bestemming. Het object heeft een totale oppervlakte van circa 135 m² verdeeld over meerdere functionele kamers en beschikt over een eigen parkeervoorziening met ruim omliggend terrein. Het object biedt uitstekende mogelijkheden voor diverse ondernemers met uiteenlopende zakelijke toepassingen binnen maatschappelijke sectoren. De indeling biedt u de vrijheid om de ruimte naar eigen inzicht in te richten en af te stemmen op uw specifieke bedrijfsactiviteiten.
Het pand is voorzien van een receptiedesk voor klanten en bezoekers, airconditioning units, LED-verlichting en meerdere toiletgroepen voor zowel personeel als bezoekers. Tevens beschikt elke behandelkamer over een pantry, wat het object geschikt maakt voor diverse professionele toepassingen. De ruimte biedt flexibiliteit voor een breed scala aan maatschappelijke doeleinden, waaronder zorginstellingen, onderwijs, praktijkruimtes en meer.
Gelegen in de wijk ‘Warande’, op steenworp afstand van het Bravis ziekenhuis en het Zonneplein, biedt dit object een uitstekende bereikbaarheid. Het stadscentrum van Bergen op Zoom is goed verbonden en binnen enkele minuten te bereiken, evenals belangrijke uitvalswegen richting de A4 en A58.
HUURPRIJS:
€ 2.500,00 per maand.
SERVICEKOSTEN:
Nader overeen te komen.
AANVAARDING:
Aanvaarding per direct.
HUURTERMIJN:
Voorkeur 36 maanden of langer.
PARKEREN:
Parkeergelegenheid op eigen terrein. Vrij parkeren in de omgeving.
VOORZIENINGEN:
– Airconditioning units;
– LED verlichting;
– Receptiedesk;
– Eigen parkeervoorziening;
– Ruim omliggend terrein;
– Pantry in de behandelruimte;
– Diverse toiletruimte;
– Alarmsysteem.
BESTEMMINGSPLAN:
De voor ‘Maatschappelijk’ aangewezen gronden zijn bestemd voor:
a. maatschappelijke voorzieningen;
b. bij deze bestemming behorende voorzieningen, zoals ontsluitingswegen, parkeervoorzieningen, groen- en waterhuishoudkundige voorzieningen.
HUURVOORWAARDEN:
– Per maand bij vooruitbetaling te voldoen;
– Huurovereenkomst Conform het standaardmodel van de Raad van Onroerende Zaken (ROZ);
– Huurprijsaanpassing vindt jaarlijks plaats op 1 juli op basis van de consumentenprijsindex (CPI) reeks alle huishoudens (2006=100), gepubliceerd door het Centraal Bureau voor de Statistiek (CBS);
– Zekerheidsstelling: waarborgsom 3 maandhuren;
– Opzegtermijn 3 maanden voorafgaande einde contract.
BEZICHTIGING:
Wilt u een bezichtiging inplannen? Bel naar 0164-261585 of stuur een email naar [email protected].






































