Op zoek naar een instapklare gezinswoning? Dit is ‘m.
Welkom aan de Burgemeester Blomlaan 23 in Bergen op Zoom. Deze ruime hoekwoning biedt een prettig wooncomfort met veel lichtinval en een praktische indeling. De woonkamer voelt direct uitnodigend aan dankzij de erker en de moderne open keuken met baropstelling, voorzien van diverse inbouwapparatuur. Op de eerste verdieping bevinden zich drie slaapkamers en een complete badkamer met ligbad, douche en toilet. De tweede verdieping is een royale, naar wens in te delen ruimte en kan worden gebruikt als vierde (of zelfs vijfde) slaapkamer, hobbyruimte of thuiswerkplek. De woning is volledig geïsoleerd, beschikt over kunststof kozijnen met HR++ beglazing en heeft energielabel A. De onderhoudsvriendelijke zij- en achtertuin met berging en dubbele toegangspoort maken het bovendien mogelijk om op eigen terrein te parkeren.
De woning is gelegen in een fijne en kindvriendelijke wijk met veel groen en speelvoorzieningen in de directe omgeving. Op korte afstand vindt u diverse voorzieningen zoals supermarkten, basisscholen, sportfaciliteiten en openbaar vervoer. Het historische centrum van Bergen op Zoom ligt op fietsafstand en biedt een breed aanbod aan winkels, horeca en cultuur. Dankzij de nabijheid van uitvalswegen zoals de A4 en A58 zijn steden als Roosendaal, Goes, Rotterdam en Antwerpen uitstekend bereikbaar. Kortom: een praktische, aantrekkelijke woonlocatie met alle dagelijkse voorzieningen binnen handbereik.
Indeling.
Begane grond (beton):
Via de verzorgde voortuin komt u binnen in de hal/entree, waar zich de meterkast en het toilet bevinden. De lichte woonkamer voelt direct ruimtelijk aan, mede dankzij de erker aan de zijkant waar momenteel de eethoek is gesitueerd. De open, moderne keuken is in een praktische U-opstelling geplaatst en beschikt over een bar en diverse inbouwapparatuur, waaronder een 4-pits gaskookplaat, vaatwasser, koelkast, afzuigkap, combi-oven en een kokend waterkraan van HOWAT voor direct heet water. De eethoek is ook zeer mooi te realiseren in de nis van de woonkamer, waardoor er ruimte ontstaat voor een ruimere eettafel waar u met familie en vrienden gezellig kunt tafelen. De woonkamer is tevens voorzien van een handige trapkast en afgewerkt met een laminaatvloer. Via de kunststof achterpui heeft u toegang tot de achtertuin, welke is uitgerust met een overkapping. Vanuit de hal/entree bereikt u via de trap de:
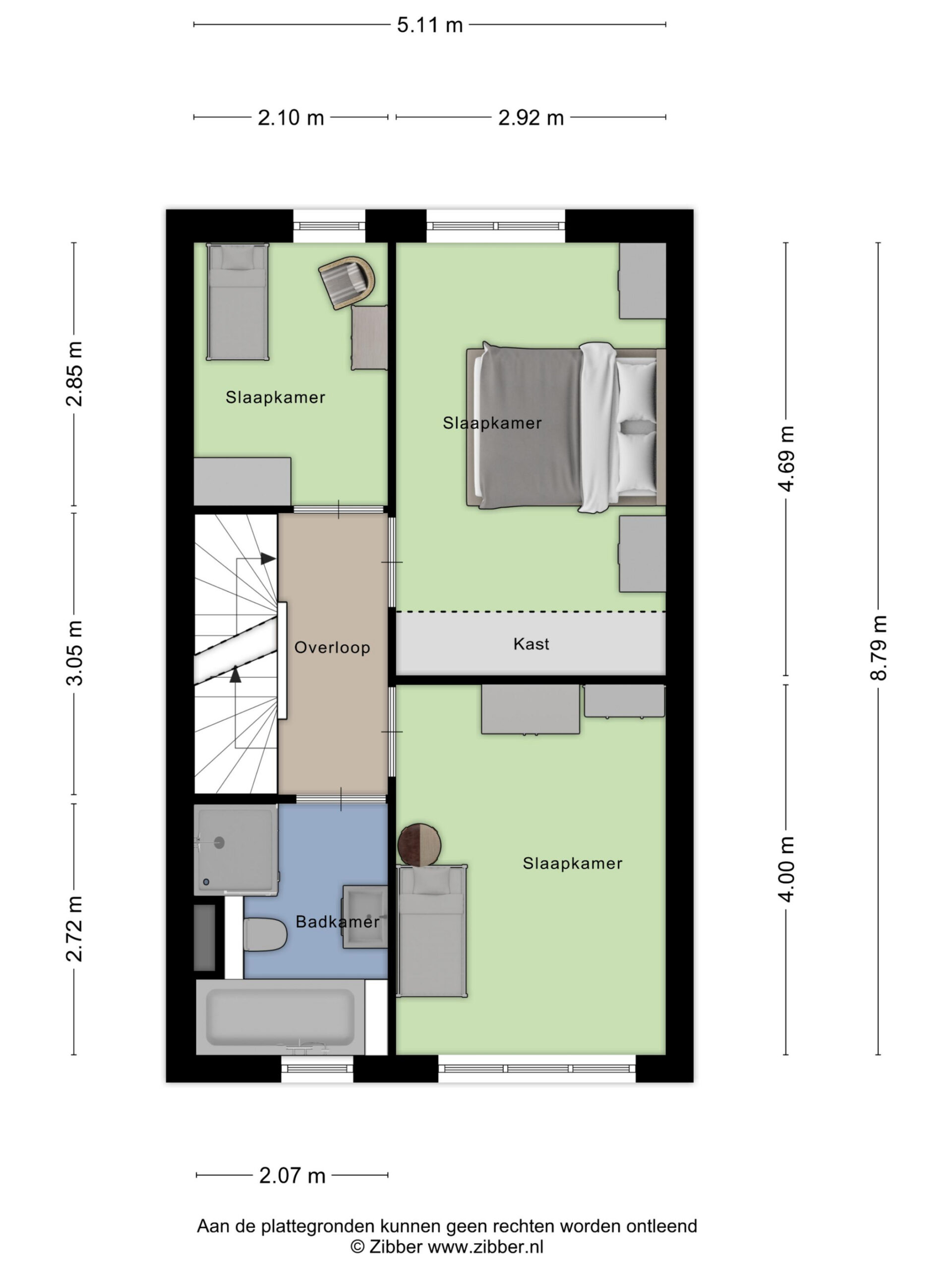
Eerste verdieping (beton):
Op de eerste verdieping biedt de overloop toegang tot drie slaapkamers en een moderne badkamer. De badkamer is compleet uitgevoerd met een ligbad, douche, toilet en een wastafelmeubel. De slaapkamers zijn voorzien van kunststof draai-kiepramen en afgewerkt met een laminaatvloer.
Slaapkamer 1 – voorzijde (ca. 12 m²)
Slaapkamer 2 – achterzijde (ca. 14 m²)
Slaapkamer 3 – achterzijde (ca. 6 m²)
Vanuit de overloop een vaste trap naar:
Tweede verdieping (beton):
De tweede verdieping betreft een ruime, naar eigen wens in te delen verdieping. Deze ruimte kan uitstekend dienst doen als vierde slaapkamer, maar biedt ook de mogelijkheid om op te delen in een vierde en vijfde slaapkamer. Uiteraard is het ook een fijne plek voor een hobbyruimte of thuiswerkplek. Verder vindt u hier de opstelplaats van de HR-combiketel (2016) en de wasmachineaansluiting. De verdieping is aan beide zijden voorzien van praktische bergschotten, ideaal voor extra opbergruimte.
Slaapkamer 4 – (ca. 26,5 m²)
Tuin:
Via de woonkamer heeft u toegang tot de onderhoudsvriendelijke zij- en achtertuin, welke is ingericht met sierbestrating, kunstgras en een in hout opgetrokken berging. Daarnaast is de tuin voorzien van een dubbele toegangspoort, waardoor het mogelijk is de auto op eigen terrein te parkeren.
Isolatie:
De woning is volledig geïsoleerd en beschikt over vloer-, wand- en dakisolatie alsmede kunststof kozijnen met HR++ beglazing. Dankzij deze voorzieningen beschikt de woning over energielabel A.
Kenmerken van de woning:
– Gelegen op een gewilde en kindvriendelijke locatie;
– Voorzien van maar liefst vier slaapkamers;
– Hoekligging met veel lichtinval dankzij de erker;
– Voorzien van kunststof kozijnen met HR++ beglazing;
– Parkeren op eigen terrein.
Kortom:
Pak je kans en maak van dit unieke huis jouw/jullie nieuwe thuis!









































