Woningzoekende opgelet!
Dit stijlvolle appartement op de eerste verdieping van “De Kaai” biedt een unieke gelegenheid om te wonen in een karakteristiek pand met prachtig uitzicht over de kaai in Bergen op Zoom. Gelegen in een charmante buurt, bevindt het appartement zich op loopafstand van het historische stadscentrum. Supermarkten, winkels, gezellige terrassen en restaurants zijn eenvoudig te voet bereikbaar.
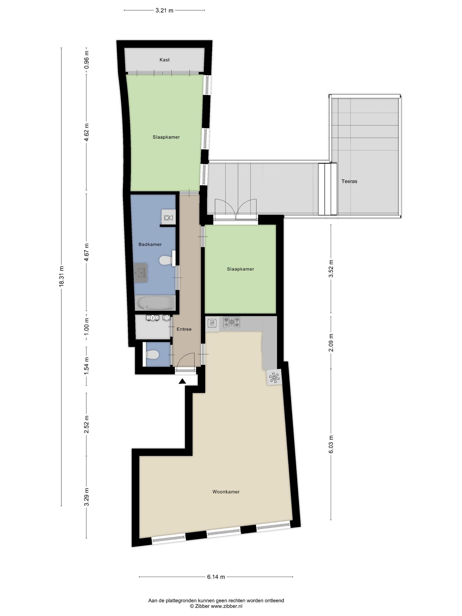
Dit verrassende 3-kamerappartement gelegen op de tweede verdieping is v.v. twee ruime slaapkamers, een lichte woonkamer met prachtig uitzicht, een open keuken met inbouwapparatuur, toiletruimte en een ruime badkamer. Daarnaast is het appartement voorzien van een eigen terras en een aparte berging.
Indeling:
1e Verdieping (houten vloer)
Bij binnenkomst op de eerste verdieping betreedt u de hal/entree, waar zich een betegeld toilet en een bijkeuken bevinden met opstelplaats voor de HR-combiketel. Vanuit de hal heeft u toegang tot de ruime woonkamer, die dankzij een grote raampartij aan de voorzijde een prachtig uitzicht biedt. De woonkamer beschikt over een open keuken, voorzien van diverse inbouwapparatuur, waaronder een 4-pits gaskookplaat, vaatwasser, koelkast en combi-oven. De ruimte is stijlvol afgewerkt met een laminaatvloer en inbouwspots in het plafond.
Het appartement beschikt over twee ruime slaapkamers, waarvan één is uitgerust met een royale inbouwkast en airco. Beide kamers zijn afgewerkt in dezelfde stijl als de woonkamer.
* Slaapkamer 1 – ca. 17 m2
* Slaapkamer 2 – ca. 11 m2
De royale badkamer is volledig betegeld en van alle gemakken voorzien, waaronder een ligbad, een inloopdouche, een stijlvol wastafelmeubel en een tweede toilet.
Terras
Het appartement is voorzien van een terras aan de achterzijde van het gebouw. Deze is ruim en te bereiken via de tweede slaapkamer.
Berging
De woning beschikt over een eigen berging, bereikbaar via de zijingang van het appartementencomplex, wat zorgt voor extra gemak en opslagruimte buiten het appartement.
Vereniging van Eigenaars:
De Vereniging van Eigenaars (VvE) is momenteel in opstartende fase. Een externe partij zal deze VVE gaan beheren. De maandelijkse bijdrage zal geschat worden op maximaal € 150,- per maand.
Isolatie:
De woning is v.v. dubbele beglazing.
Kortom:
Ontdek dit nette afgewerkte historisch appartement op een gewilde locatie in Bergen op Zoom en maak van dit appartement jouw/jullie nieuwe thuis!





























