Sfeervolle starterswoning met zonnige tuin in hartje Halsteren!
Welkom in deze prettige woning, waar elke ruimte uitstraalt dat hier met zorg en liefde is gewoond. Zodra u binnenstapt, voelt u de warme sfeer en het lichte karakter die dit huis zo bijzonder maken. Met drie slaapkamers en een zonnige tuin op het zuiden is er alle ruimte om te ontspannen Kortom, een fijn thuis waar comfort en gezelligheid samenkomen.
De woning is gelegen in een rustige en gewilde straat nabij het dorpscentrum van Halsteren. Op loopafstand vindt u diverse winkels, supermarkten, scholen en gezellige eetgelegenheden. Ook sportvoorzieningen en openbaar vervoer bevinden zich in de directe omgeving. Daarnaast bent u binnen enkele minuten op de snelwegen A4 en A58 richting Bergen op Zoom, Roosendaal en Antwerpen. Een centrale ligging met het beste van twee werelden: wonen in een rustige straat met alle dagelijkse voorzieningen binnen handbereik.
Indeling.
Begane grond (beton/hout):
Bij binnenkomst via de hal/entree treft u een nette ruimte met toegang tot de vernieuwde meterkast (voorzien van 5 groepen en één aardlekschakelaar), het toilet en een praktische trapkast met bergruimte, gas- en watermeter. De hal biedt toegang tot de goed onderhouden keuken, uitgerust met een 5-pits gaskookplaat, afzuigkap, vaatwasser en dubbele spoelbak. Vanuit de keuken bereikt u de sfeervolle, lichte woonkamer die is afgewerkt met een laminaatvloer en voorzien van een kunststof kozijn aan de achterzijde. De woning is tevens grotendeels voorzien van rolluiken.
Via de trap in de hal/entree is de eerste verdieping bereikbaar.
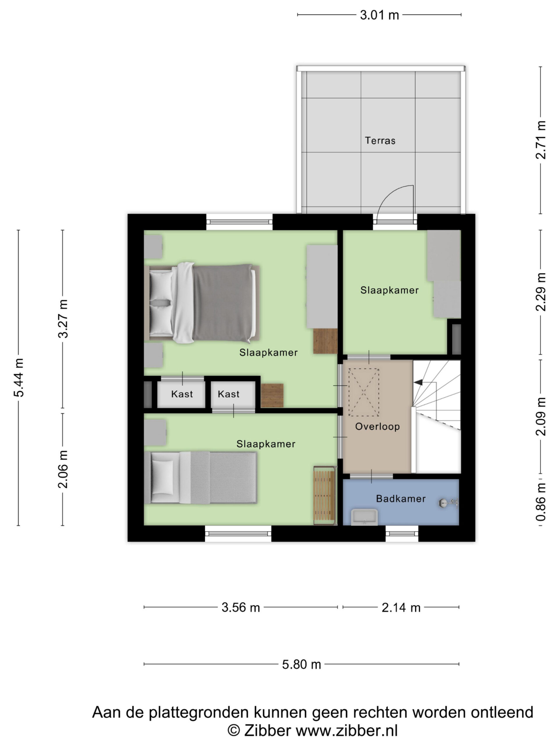
Eerste verdieping (hout):
De overloop op de eerste verdieping biedt toegang tot twee ruime slaapkamers met karakteristieke inbouwkasten en een derde, kleinere slaapkamer. De badkamer is voorzien van een douche, wastafel en designradiator. Alle slaapkamers zijn afgewerkt met een vinyl vloerafwerking. Vanuit de derde slaapkamer bereikt u het zonnige balkon, gelegen op het zuiden.
Slaapkamer 1 – achterzijde (ca. 11 m²)
Slaapkamer 2 – voorzijde (ca. 7 m²)
Slaapkamer 3 – voorzijde (ca. 5 m²)
Via de overloop is met een vlizotrap de bergzolder bereikbaar.
Tuin:
De woning beschikt over een ruime en zonnige achtertuin op het zuiden, voorzien van een praktische achterom en een in steen opgetrokken berging met daarin de HR-combiketel (2019).
Isolatie:
De woning is gedeeltelijk voorzien van dubbele beglazing en beschikt over energielabel E.
Kenmerken van de woning:
– Gelegen op een goede/gewilde locatie in Halsteren.
– Door de jaren heen goed onderhouden.
– Ruime tuin gelegen op het Zuiden.
– Goede verbinding met uitvalswegen en openbaar vervoer.
Kortom:
Pak je kans en maak van dit unieke huis jouw/jullie nieuwe thuis!

























