HomeWoningenRoosendaal – Van Goghlaan 248
Verkocht
Roosendaal
Van Goghlaan 248
Objecttype
Woonhuis
Woonoppervlakte
87 m2
Vraagprijs €259.000

k.k.

Ben jij op zoek naar een in-stap-klare tussenwoning met drie slaapkamers? Dan hebben wij de perfecte woning voor jou! Deze woning is gelegen in een rustige wijk, perfect voor gezinnen met een tuin op het zuiden! Daarnaast beschikt deze woning over een afgewerkte woonkamer, half open keuken en 3 ruime slaapkamers met veel daglicht.

Daarnaast beschikt de woning over een gezellige woonkamer, half open keuken, een ruime berging en een tuin op het zuiden.

Indeling van de woning

BEGANDE GROND (beton vloer)

U stapt binnen in de hal die u leidt naar de ruime woonkamer. De woonkamer is afgewerkt met een laminaat vloer, spachtelputz wanden en dubbelglas. De aangrenzende half-open keuken is voorzien van een vernieuwde vaatwasser (2022), keramische kookplaat, oven, afzuigkap en enkele spoelbak.

In de hal bevindt zich ook het toilet en de meterkast. Het toilet is voorzien van een wandcloset en fonteintje, welke is afgewerkt met tegels en een schrootjes plafond. de meterkast is voorzien van 6 groepen en 2 aardlekschakelaars.

EERSTE VERDIEPING (beton vloer)

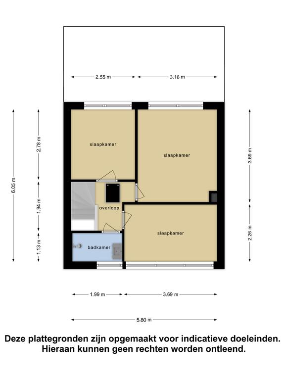
Via de vaste trap op de begane grond wordt de overloop van de eerste verdieping bereikt. De overloop is afgewerkt met een laminaat vloer en spuitwerk. De overloop biedt toegang tot de badkamer (gerenoveerd in 2016), drie ruime slaapkamers en een bergzolder.

De badkamer is afgewerkt met een betegelde vloer, betegelde wanden en dubbelglas. De badkamer is voorzien van een wastafelmeubel en douche met douchegordijn rails.

Slaapkamer 1 (ca. 8,5 m2) – gelegen aan de voorzijde – is afgewerkt met een laminaat vloer, spuitwerk wanden en spuitwerk plafond.

Slaapkamer 2 (ca. 11,5 m2)– gelegen aan de achterzijde – is afgewerkt met een laminaat vloer, spuitwerk wanden en spuitwerk plafond. Deze ruimte is voorzien van zonnescreens.

Slaapkamer 3 (ca. 7 m2) – gelegen aan de achterzijde – is afgewerkt met een laminaat vloer, spuitwerk wanden en spuitwerk plafond. Deze ruimte is voorzien van zonnescreens.

BERGZOLDER

Via een vlizotrap bereikt u de bergzolder, voorzien van dakisolatie, op de tweede verdieping. Hier bevindt zich de CV-ketel; Intergas Kombi Kompakt HRE 36/30 A (2016).

TUIN

Deze woning schikt over een achtertuin, op ‘t zuiden! De ruime tuin, welke te bereiken is via de keuken en de ingang achterom, grenst aan een speeltuintje, perfect voor de kinderen om buiten te spelen. Met een stenen schuur van ca. 10 m2 is er ook voldoende opbergruimte voor fietsen en tuingereedschap.

Algemeen

AANVAARDING
Aanvaarding in overleg.

BEZICHTIGING
Wilt u een bezichtiging inplannen? Bel naar 0164-261585 of stuur een email naar [email protected].

Kenmerken.

ReferentienummerBM100147
Soort bouwBestaande bouw
Type object
Objecttype
Woonhuis
Woonoppervlakte
Woonoppervlakte
87 m2
AanvaardingIn overleg
StatusVerkocht

Heeft u interesse in dit object? Neem direct contact op

  • Persoonlijke aanpak en begeleiding
  • Betrokken partner met 20 jaar kennis en ervaring
  • Geregistreerd VBO-makelaar
Hopmans GroepHopmans VastgoedmanagementHopmans WonenFlexStayHopmans Bedrijfsonroerendgoed
Scroll naar boven